Alghero, via Creta – Appartamento con terrazza
Alghero, via Creta; nella zona del lido di Alghero proponiamo…
€248.000,00
43, Via Giuseppe Mazzini, Old Alghero, Alghero, Sassari, Sardegna, 07041, Italia
Vendita
€225.000,00
ID immobile :
AHO109
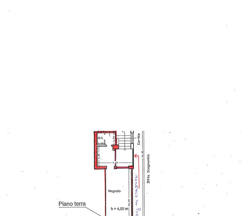
In Via Mazzini, punto di maggior passaggio pedonale, è disponibile un locale commerciale al piano terra caratterizzato da una vetrina diretta sulla strada.
L’ambiente principale si distingue per un’altezza interna di 4 metri, che offre molteplici possibilità di allestimento verticale o soppalco.
La pianta è lineare: la zona vendita fronte strada è collegata a un disimpegno posteriore che ospita il servizio igienico.
L’immobile necessita di alcuni interventi di ristrutturazione, rappresentando un’opportunità concreta per chi vuole progettare i propri spazi partendo da una base neutra, senza dover demolire allestimenti precedenti.
È una soluzione pratica per chi cerca una sede definitiva in una posizione di prestigio, dove la visibilità è garantita dal contesto urbano circostante.
Note Importanti:
Questo annuncio non ha valore contrattuale. Vi invitiamo a contattarci per verificare l’effettiva disponibilità dell’immobile e la corrispondenza dei dettagli descritti, poiché alcune informazioni (come superfici o spese condominiali) potrebbero richiedere verifica.
Si informa che eventuali mobili ed elettrodomestici presenti, se concordati, saranno ceduti a titolo gratuito. Pertanto, non influenzano il prezzo di vendita e vengono forniti senza alcuna garanzia sul loro funzionamento.
La visione degli immobili è possibile solo previa sottoscrizione del modulo di visita e consenso al trattamento dati.
Per qualsiasi informazione relativa a questo annuncio o all’iter di compravendita immobiliare, i nostri agenti e la segreteria sono a vostra completa disposizione.
Alghero, via Creta; nella zona del lido di Alghero proponiamo…
€248.000,00
Immersa nella quiete della campagna e a pochi minuti dalla…
€750.000,00
Locale commerciale Pronto all’Uso – Alghero Taulera
ItalianoQuesto sito web utilizza i cookie per potervi offrire la migliore esperienza d'uso possibile. Le informazioni contenute nei cookie vengono memorizzate nel browser dell'utente e svolgono funzioni quali il riconoscimento dell'utente quando torna sul nostro sito web e l'aiuto al nostro team per capire quali sezioni del sito web sono più interessanti e utili per l'utente.
I cookie strettamente necessari dovrebbero essere sempre attivati per poter salvare le tue preferenze per le impostazioni dei cookie.
Se disabiliti questo cookie, non saremo in grado di salvare le tue preferenze. Ciò significa che ogni volta che visiti questo sito web dovrai abilitare o disabilitare nuovamente i cookie.
Leggi l'informativa sulla Privacy & Cookie